卫生级不锈钢S304 316L方管
电磁阀是用来控制流体的自动化基础元件,属于执行器,并不限于液压、气动。用在工业控制系统中调整介质的方向、流量、速度和其他的参数。当然电磁阀是多种多样的,就拿形态来讲,它分为常开型和常闭型,顾名思义(常开型:通电则关闭,断电则打开;常闭型:通电则打开,断电则关闭),当然要注意的一点是电磁阀是一种比较适合多次反复开关的一种阀,相对也会为我们的客户剩些电哦~


电磁阀属于流体控制元件,例如气动与液压领域。流体系统一般分为气源(液压源)元件、控制元件、执行元件等。阀属于控制元件,而不属于执行元件。气缸、液压缸等才属于执行元件。
电磁阀属于阀的其中一类,区别于手动阀或者机械阀,它的动作由电磁线圈来控制。
电磁阀的种类太多了,主要起以下作用:方向控制、流量控制、压力控制,主要对流体系统的通断、流体的流向、压力的大小等等控制。举个例子,水龙头你可以理解为一个阀,只不过是手控的。
一般都用在控制液压流动方向上,工厂里面的机械装置一般都由液压钢控制,所以一定就会用到电磁阀.工作原理就给你说个简单的电磁阀吧,电磁阀里面有个密闭的腔,在的不同位置开有通孔,,每个孔都通向不同的油管,腔中间是阀,两面是两块电磁铁,哪面的磁铁线圈通电阀体就会被吸引到哪边,通过控制阀体的移动来档住或漏出不同的排油的孔,而进油孔是常开的,这样液压油就会进入不同的排油管,然后通过油的压力来推动油刚的活塞,活塞又带动活塞杆,活塞竿带动机械装置动.这样通过控制电磁铁的电流就控制了机械运动.

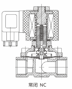
1、电磁阀主要分类
1)直动式电磁阀:
原理:通电时,电磁线圈产生电磁力把关闭件从阀座上提起,阀门打开;断电时,电磁力消失,弹簧把关闭件压在阀座上,阀门关闭。
2)活塞式电磁阀:
原理:常闭型:当线圈通电时,先导阀芯吸合,先导孔打开,阀上腔卸压,活塞靠下腔介质压力推动,电磁阀打开;当线圈断电时,先导阀芯靠弹簧复位,先导孔关闭,阀上腔由活塞节流孔增压和复位弹簧的推力,电磁阀关闭。
常开型:当线圈通电时,先导孔关闭,阀上腔由活塞节流孔增压和复位弹簧的推力,电磁阀关闭。当线圈断电时,先导阀芯靠弹簧复位,先导孔打开,阀上腔卸压,活塞靠下腔介质压力推动,电磁阀打开。
3)先导式电磁阀:
原理:通电时,电磁力把先导孔打开,上腔室压力迅速下降,在关 闭件周围形成上低下高的压差,流体压力推动关闭件向上移动,阀门打开;断电时,弹簧力把先导孔关闭,入口压力通过旁通孔迅速腔室在关阀件周围形成下低上高的压差,流体压力推动关闭件向下移动,关闭阀门。
2、电磁阀从阀结构和材料上的不同与原理上的区别,分为六个分支小类:直动膜片结构、分步直动膜片结构、先导膜片结构、直动活塞结构、分步直动活塞结构、先导活塞结构。
3、电磁阀按照功能分类:水用电磁阀、蒸汽电磁阀、制冷电磁阀、低温电磁阀、燃气电磁阀、消防电磁阀、氨用电磁阀、气体电磁阀、液体电磁阀、微型电磁阀、脉冲电磁阀、液压电磁阀 常开电磁阀、油用电磁阀、直流电磁阀、高压电磁阀、防爆电磁阀等。

根据材质电磁阀有哪些分类?
1)不锈钢电磁阀:是最常见的电磁阀产品,不锈钢材质因为质量好,工作稳定,最为受用户欢迎。
*该系列产品广泛地应用于纺织、印刷、化工、塑料、橡胶、制药、食品、建材、机械、电器、表面处理等生产和科研部门以及浴室、食堂、空调等人们日常生活设施中。
2)黄铜电磁阀:部分要求不高的用户,会选择黄铜电磁阀产品,此类电磁阀产品价格相对偏低,适应于普通的工作环境。
* 该系列产品一般适应于液体、水、气、热水、油、瓦斯等介质。
3)塑料电磁阀:在一些特殊的工作场所,和用在特殊介质的电磁阀,例如有酸碱性介质的工作环境,黄铜和不锈钢材质的电磁阀产品均容易被腐蚀,所以用特殊材质(工程塑料PVC、 CPVC、UPVC、ABS或聚四氟等)做成的塑料电磁阀在耐腐蚀性能上特别优秀,
* 该系列产品适应于适宜饮用水、各类未经处理的污水、雨水、海水及各种酸碱盐溶液、有机溶剂等